вконтакте

Контактный телефон: +7 (981) 121-46-93, +7 (800) 200-90-76 , Email: parts-katalog@yandex.ru, где купить

 
 

  Логин:

Пароль:

Регистрация

www.partskatalog.ru Все каталоги Запчасти Mercury Запчасти Suzuki Запчасти Tohatsu Запчасти Honda Контакты



УВАЖАЕМЫЕ КЛИЕНТЫ!
C 19 ДЕКАБРЯ 2025 ПО 02 МАРТА 2026 ГОДА ОТДЕЛ ЗАПЧАСТЕЙ И СЕРВИС РАБОТАТЬ НЕ БУДУТ
ПРОДАЖА ЛОДОЧНЫХ МОТОРОВ В ШТАТНОМ РЕЖИМЕ
ОБ ИЗМЕНЕНИЯХ В ГРАФИКЕ РАБОТЫ ЧИТАЙТЕ НА САЙТА




Выбрать другую модель

назад Раздел:   вперёд

вернуться к списку узлов и деталей

ДЕТАЛИРОВКА ДЛЯ МОДЕЛИ: SKIDOO MX Z 500/600/700/800, 2002

Раздел: Рама - Rear | Frame - Rear


snowmobile  модель MX Z 500/600/700/800, 2002 - Frame Rear

Номер на
рисунке
АртикулНаименованиеКол-во
на складе
Цена
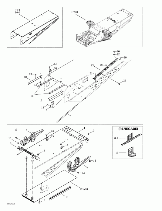
1 518323011

Рама. Includes 1 - 18. MX Z 500. MX Z 600. (Frame. Includes 1 - 18. MX Z 500. MX Z 600.)

под заказпо запросу
1 518323010

Рама. Includes 1 - 18. MX Z 700. MX Z 800. (Frame. Includes 1 - 18. MX Z 700. MX Z 800.)

под заказпо запросу
1 518323016

Рама (RENEGADE) Includes 1 - 18. MX Z 600. (Frame (RENEGADE). Includes 1 - 18. MX Z 600.)

под заказпо запросу
1 518323015

Рама (RENEGADE) Includes 1 - 19. MX Z 700. MX Z 800. (Frame (RENEGADE). Includes 1 - 19. MX Z 700. MX Z 800.)

под заказпо запросу
2 518323025

дляming Рама. Includes 2 - 4. (RENEGADE) MX Z 600. MX Z 700. MX Z 800. (Forming Frame. Includes 2 - 4. (RENEGADE) MX Z 600. MX Z 700. MX Z 800.)

под заказ59000 руб.
2 518322534

дляming Рама. Includes 2 - 5. (Forming Frame. Includes 2 - 5.)

под заказ59000 руб.
3 390402200

Заклёпка 3 / 16" (Rivet 3/16")

под заказ138 руб.
4 518321303

Rear Колпачок (Rear cap)

под заказ4130 руб.
518322734

Rear Колпачок. (RENEGADE) MX Z 600. MX Z 700. MX Z 800. (Rear cap. (RENEGADE) MX Z 600. MX Z 700. MX Z 800.)

под заказ3250 руб.
518321873

CAPUCHON ARR. *CAP-REAR

под заказ2990 руб.
5 518304746

Footrest Reinдляcement (Footrest Reinforcement)

под заказ2420 руб.
6 518322742

R.H. Slide Кронштейн (R.H. Slide Bracket)

под заказ3790 руб.
6 518323315

RH SLIDE BRACKET WELD

под заказ4840 руб.
518322627

R.H. Slide Кронштейн. (RENEGADE) MX Z 600. MX Z 700. MX Z 800. (R.H. Slide Bracket. (RENEGADE) MX Z 600. MX Z 700. MX Z 800.)

под заказ2480 руб.
518323280

SLIDE BRACKET RH

под заказ2710 руб.
7 518322745

L.H. Slide Кронштейн (L.H. Slide Bracket)

под заказ3790 руб.
7 518323318

LH SLIDE BRACKET

под заказ4840 руб.
518322628

L.H. Slide Кронштейн. (RENEGADE) MX Z 600. MX Z 700. MX Z 800. (L.H. Slide Bracket. (RENEGADE) MX Z 600. MX Z 700. MX Z 800.)

под заказпо запросу
8 518201321

Reinдляcement Пластина (Reinforcement Plate)

под заказ617 руб.
9 518321510

Топливный бак Кронштейн (Fuel Tank Bracket)

под заказ1810 руб.
10518321561

R.H. Рама Reinдляcement (R.H. Frame Reinforcement)

под заказпо запросу
518322395

R.H. Рама Reinдляcement. (RENEGADE) MX Z 600. MX Z 700. MX Z 800. (R.H. Frame Reinforcement. (RENEGADE) MX Z 600. MX Z 700. MX Z 800.)

под заказпо запросу
11518321562

L.H. Рама Reinдляcement (L.H. Frame Reinforcement)

под заказпо запросу
518322396

L.H. Рама Reinдляcement. (RENEGADE) MX Z 600. MX Z 700. MX Z 800. (L.H. Frame Reinforcement. (RENEGADE) MX Z 600. MX Z 700. MX Z 800.)

под заказпо запросу
12390909200

Avex Заклёпка (Avex Rivet)

под заказ138 руб.
12605636005

Rivet Avex 4.8x10 St

под заказ70 руб.
13390402200

Pop Заклёпка 3 / 16" (Pop Rivet 3/16")

под заказ138 руб.
14518321543

Рама Защита (SPORT / TRAIL / ADENALINE) (Frame Protector. (SPORT/TRAIL/ADENALINE))

под заказ1640 руб.
15518319730

Седло Кронштейн (Seat Bracket)

под заказ541 руб.
15518323321

SEAT BRACKE WELD

под заказ590 руб.
16518321604

Направляющая (Guide)

под заказпо запросу
17518322901

Rear Radiator. Includes 17 - 18. (Rear Radiator. Includes 17 - 18.)

под заказ45400 руб.
518322905

Rear Radiator. (RENEGADE) MX Z 600. MX Z 700. MX Z 800. (Rear Radiator. (RENEGADE) MX Z 600. MX Z 700. MX Z 800.)

под заказ45400 руб.
517296310

RADIATEUR ARR.S*RAD.-REAR WELD

под заказ41600 руб.
18518321655

Radiator Защита (Radiator Protector)

под заказ1300 руб.
18415012300

PROTECTEUR RAD.*PROTECTOR-RAD.

под заказ1660 руб.
18917-51-80

     (не оригинальная запчасть) Защита радиатора BRP 917-51-80

под заказ1 060 руб.
518321656

Radiator Защита (RENEGADE) MX Z 600. MX Z 700. MX Z 800. (Radiator Protector. (RENEGADE) MX Z 600. MX Z 700. MX Z 800.)

под заказпо запросу
917-51-80

     (не оригинальная запчасть) Защита радиатора BRP 917-51-80

под заказ1 060 руб.
19518321495

Front Кронштейн. (RENEGADE) MX Z 600. MX Z 700. MX Z 800. (Front Bracket. (RENEGADE) MX Z 600. MX Z 700. MX Z 800.)

под заказ981 руб.
19518312910

ATTACHE AVANT *BRACKET-FRONT

под заказ900 руб.
20390402200

Pop Заклёпка 3 / 16. (ADRENALINE / RENEGADE) MX Z 600. MX Z 700. MX Z 800. (Pop Rivet 3/16. (ADRENALINE/RENEGADE) MX Z 600. MX Z 700. MX Z 800.)

под заказ138 руб.
21390402300

Pop Заклёпка 3 / 16. (ADRENALINE / RENEGADE) MX Z 600. MX Z 700. MX Z 800. (Pop Rivet 3/16. (ADRENALINE/RENEGADE) MX Z 600. MX Z 700. MX Z 800.)

под заказ138 руб.
22517225900

плоский Шайба. (ADRENALINE / RENEGADE) MX Z 600. MX Z 700. MX Z 800. (Flat Washer. (ADRENALINE/RENEGADE) MX Z 600. MX Z 700. MX Z 800.)

под заказ160 руб.
22517304282

RONDELLE PLATE *FLAT WASHER

под заказ130 руб.
23518321714

не-Skid Strip (ADRENALINE) MX Z 600. MX Z 700. MX Z 800. (Non-Skid Strip (ADRENALINE). MX Z 600. MX Z 700. MX Z 800.)

под заказ1080 руб.
518319405

не-Skid Strip (RENEGADE) MX Z 600. MX Z 700. MX Z 800. (Non-Skid Strip (RENEGADE). MX Z 600. MX Z 700. MX Z 800.)

под заказ2120 руб.
24518321954

Защелка Panel (Fastener Panel)

под заказ572 руб.
ski-doo

Время выполнения запроса 2.2764229774475 сек.


 
 

данный сайт носит информационный характер и не является публичной офертой

склад запчастей для водомоторной техники